mobilheim rosi 2+kk sedlová střecha 10m 2 podkroví dřevo holobyt
| Ref: | 102kk2pa |
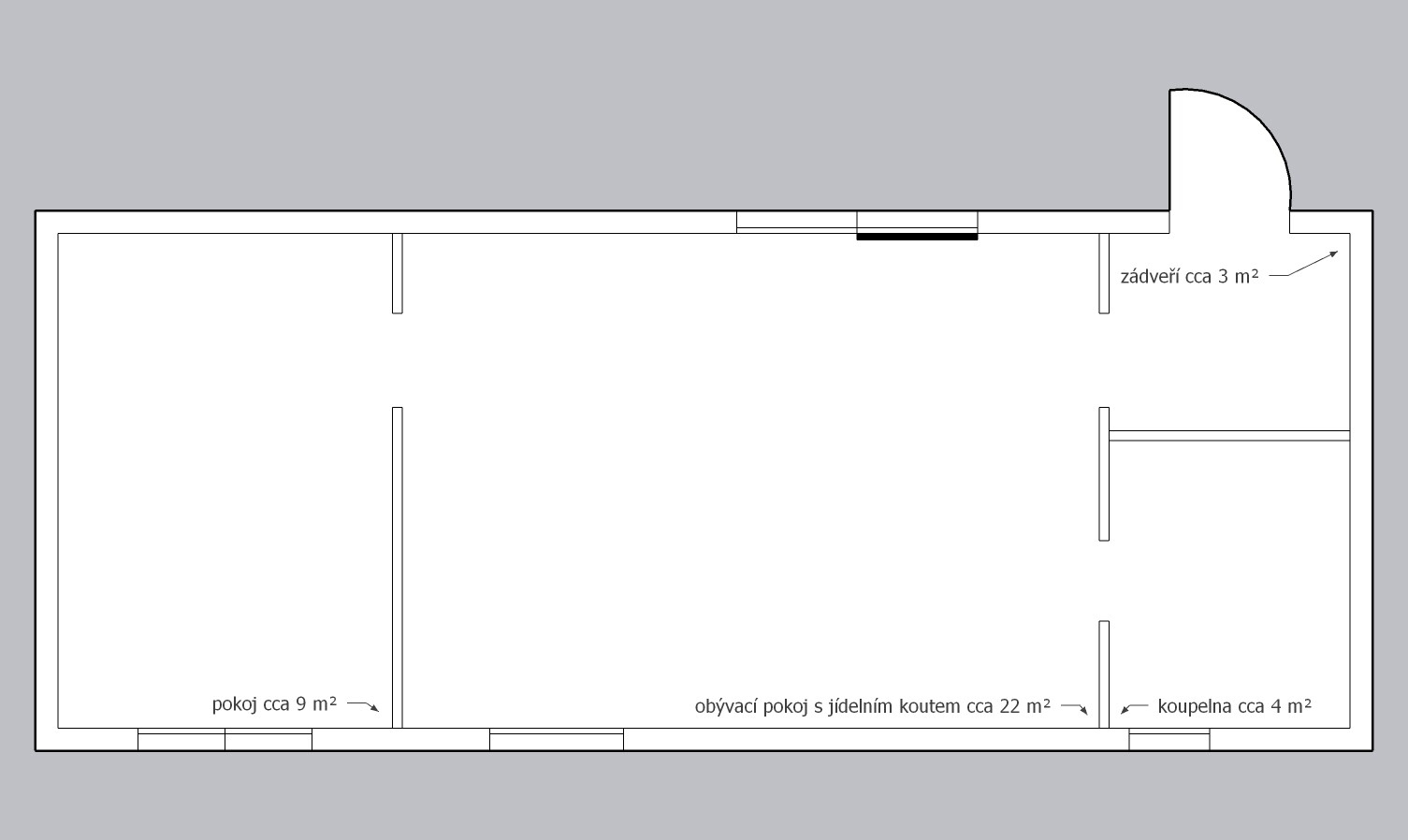
| Size: | 10 x 4m (cca 40m2) |
| Layout: | 1 ložnice, obývací pokoj s kuchyňským koutem, koupelna, WC, 2 podkroví |
| Výbava: | Nový mobilheim, dřevěný obklad, vnitřní stěny sádrokarton, strop dřevěný obklad, kuchyně, (dřez, digestoř, varná deska s troubou), koupelna (WC, umyvadlo, sprchový box, bojler 80l) |
| Vytápění: | Rozvod pro elektrická topidla, možnost instalace krbových kamen nebo klimatizace |
| Availability: | On order |
| Price: | Se sedlovou střechou 1 499 000Kč vč. DPH, s plochou střechou 1 569 000Kč vč. DPH |
| Příplatek: | za vyšší podkroví 100 000Kč |
Contact:
email: info@mobilnidum.eu
Showroom:
Hluboká nad Vltavou - Zámostí
Opening hours:
Based on prior email arrangement
Year-round mobile homes - transportation
Year-round mobile homes - construction









